info@sindbat.com
+90 216 474 74 79
TR
EN
AR
ANASAYFA
SINDBAT HAKKINDA
ÜRÜNLERİMİZ
MAKİNELER
ISITMA & BOILER
ALÜMİNYUM MAKİNELERİ
AHŞAP MAKİNELERİ
ALÜMİNYUM PROFİL
SÜRME SİSTEMLERİ
ALDOKS
C60
KEPENK
LAMBİRİ
AKSESUAR
YAPIŞTIRICI ÜRÜNLER
PENCERE AKSESUARLARI
MENTEŞE AKSESUARLARI
KAPI AKSESUARLARI
ALDOKS AKSESUARLAR
ORMAN ÜRÜNLERİ
PVC-PET KAPLI LEVHA
PVC KAPLAMA KAPILAR
AHŞAP KAPILAR
LAKE KAPILAR
MİLAMİN KAPLI LEVHA
PROJELER
TAVUK KÜMESLERİ
HİZMETLERİMİZ
İLETİŞİM
TR
EN
AR
AD-40 ECO
Anasayfa
ÜRÜNLERİMİZ
ALÜMİNYUM PROFİL
SÜRME SİSTEMLERİ
İÇ MEKAN SİSTEMİ
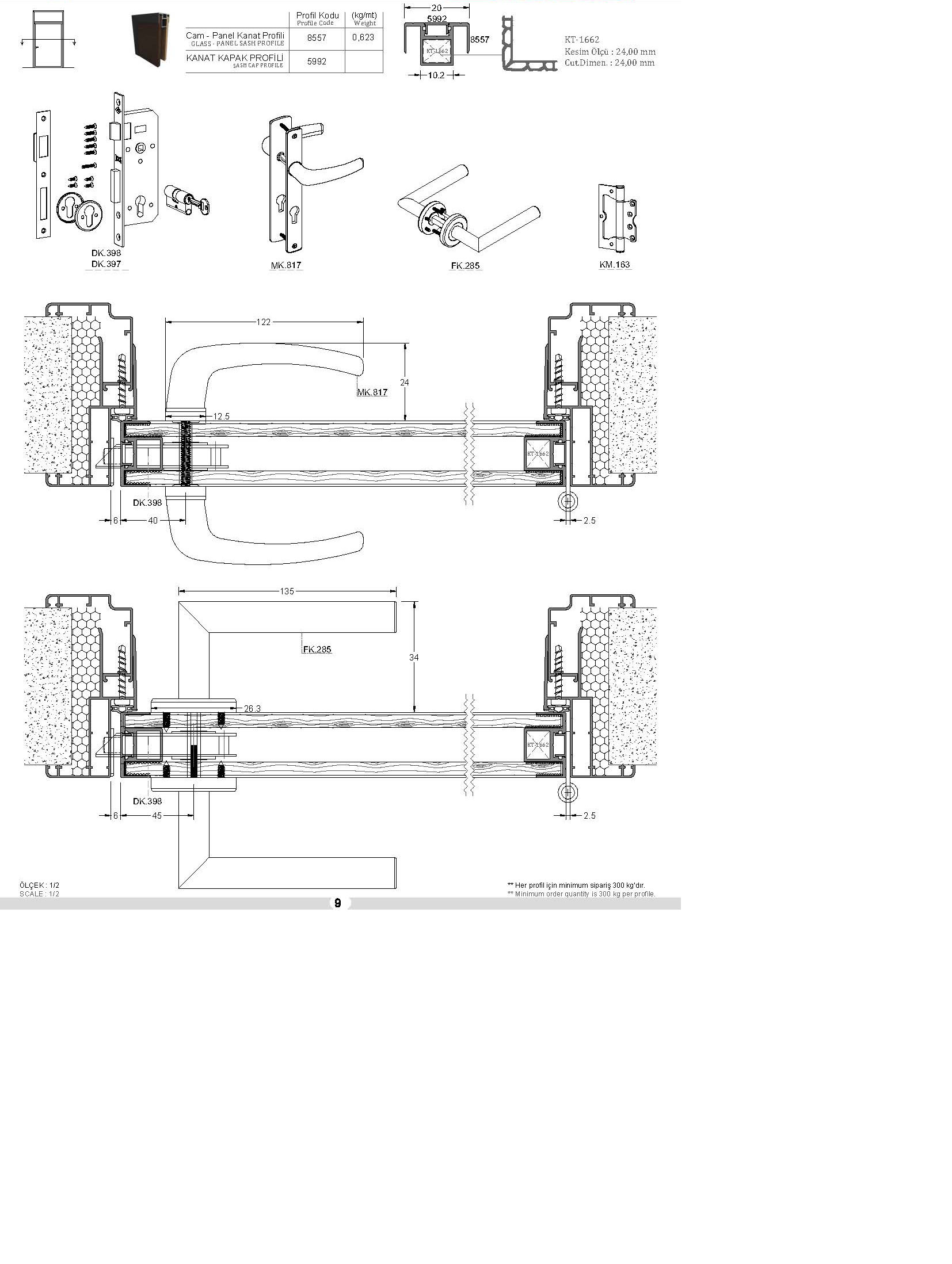
AD-40 ECO
AD-40 ECO
Whatsapp
Telefon
E-Mail
TEKLİF ALIN
Fiyatlarımız hakkında bilgi almak mı istiyorsunuz? Bilgilerinizi bırakın en kısa sürede sizi arayalım.
Gönder